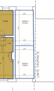
Garage pour 2 voitures à Linger